podstavek TL
na K1
38 kg

Številka izdelka: 31994
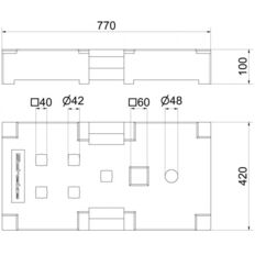
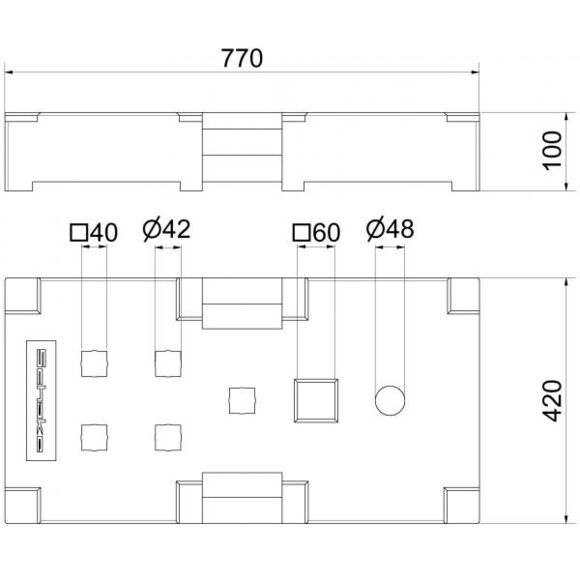
Podstavek K1

žepi:
5x 40 x 40 mm in Ø42 mm skupaj
1x 60 x 60 mm
1x Ø 48 mm

Dimenzije:
širina: 420 mm
dolžina: 770 mm
višina: 100 mm

Površina:
Recikliranje plastike, 38 kg

Preizkušeno v skladu z:
TL identifikacija naprav za vgradnjo K1,
v skladu s predpisi ZTV-SA

Naše podstavke lahko prilagodite z vtisom logotipa za vaše promocijske namene.
Ta možnost služi kot stroškovno učinkovit oglaševalski prostor, ki pusti trajen vtis.

Cena na kos:

40,83 

Nazaj

Sorodni izdelki

Tu žal ni nobenega izdelka.